產品介紹
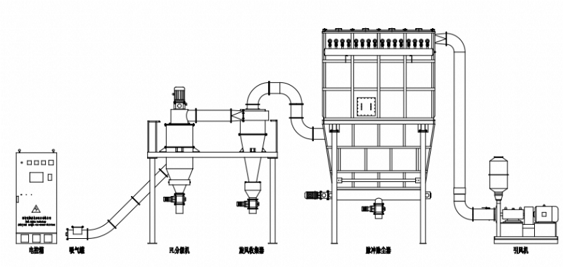
氣流分級機與旋風分離器、除塵器、引風機組成一套分級系統(tǒng)。物料在風機抽力作用下由分級機下端入料口隨上升氣流高速運動至分級區(qū),在高速旋轉的分級渦輪產生的強大離心力作用下,使粗細物料分離,符合粒徑要求的細顆粒通過分級輪葉片間隙進入旋風分離器或除塵器收集,粗顆粒夾帶部分細顆粒撞壁后速度消失,沿筒壁下降至二次風口處,經(jīng)二次風的強烈淘洗作用,使粗細顆粒分離,細顆粒上升至分級區(qū)二次分級,粗顆粒下降至卸料口處排出。產品特點
● 適用于干法微米級產品的精細分級,可分級球狀、片狀、針狀的顆粒,也可對不同密度的顆粒進行分級。● 分級產品的粒度可達D97:8~150微米,產品粒度無級可調,品種更換非常方便。
● 分級效率(提取率)60%~90%,流動性好的物料分級效率就高,反之效率降低。
●采用立式分級渦輪裝置,轉速低,耐磨損,系統(tǒng)功率配置低。
● 可多級分級機串聯(lián)使用,同時生產多個粒度段的產品。
● 可與球磨機、振動磨、雷蒙磨等粉磨設備串聯(lián)使用,組成閉路循環(huán)。
● 控制系統(tǒng)采用程序控制,運行狀態(tài)實時顯示,操作簡便。
● 系統(tǒng)負壓運行,粉塵排放量不超過40mg/m3,設備噪音通過采用消音措施,不高于75dB(A)。
相關產品
相關案例
在線定制你的行業(yè)專屬解決方案
品質締造價值,銳意進取,不斷前行






